Skip to main content
  • Appartement
  • Vente

Appartement T1 de 21 m2

Vénissieux
173 000€

Description

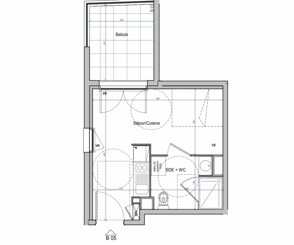
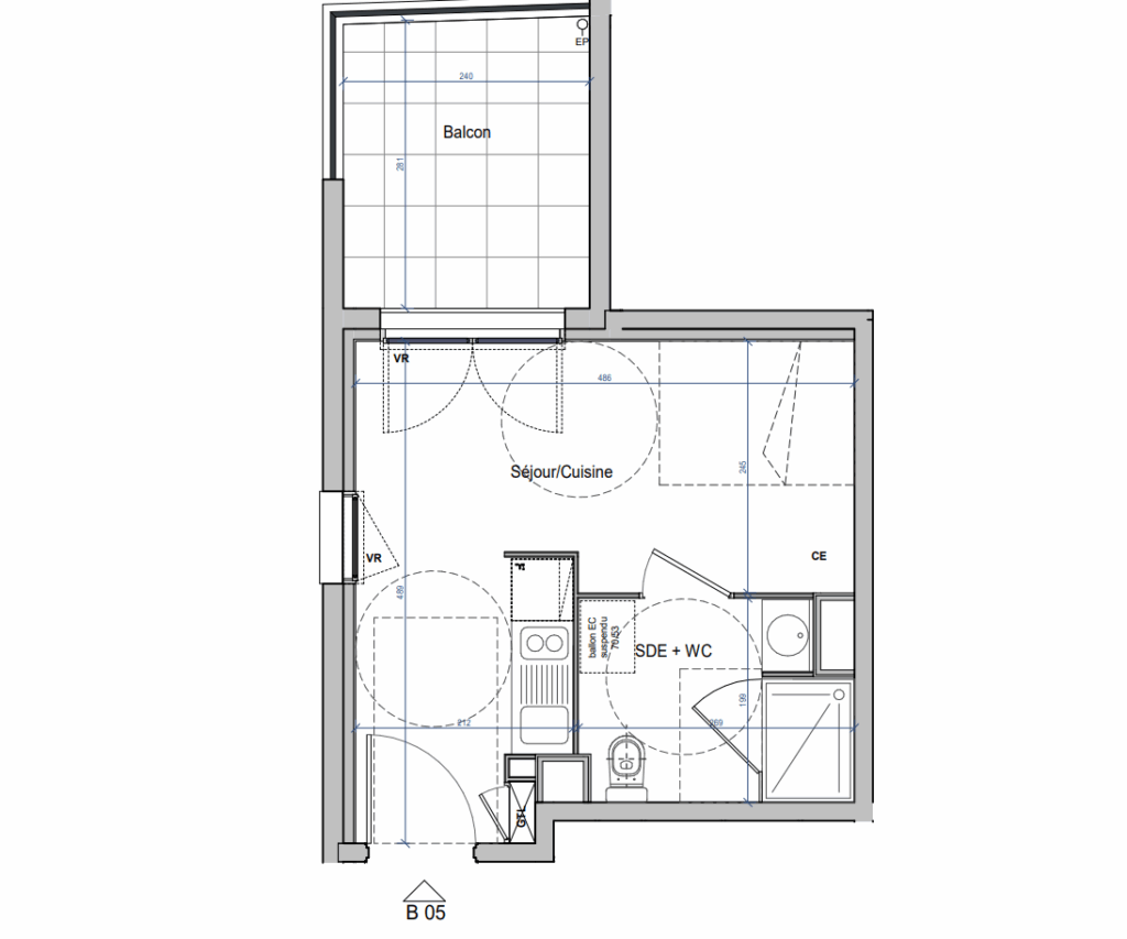
Il s’agit d’un appartement T1 au 1er étage (R+1) à VÉNISSIEUX

Surface habitable : 21.43 m2 comprenant :

Séjour/cuisine : 16.46 m2
SDE + WC : 4.97 m2

Espace extérieur :

Balcon : 6.74 m2

PRESTATIONS DE LA RÉSIDENCE :

Construction RT 2012
Résidence close et sécurisée
Stationnements en sous-sol avec portail télécommandé
Ascenseurs desservant tous les niveaux
Local vélos sécurisé
Superbe jardin paysager en coeur d’îlot
Carrelage 45x45cm
Salle de bain aménagée avec sèche-serviette
Double vitrage
Chauffage électrique et production d’eau chaude sanitaire par ballon électrique

LOCALISATION PRIVILÉGIÉE :

À 200m du tramway ligne 6 (arrêt Moulin à Vent)
À 100m du bus ligne C12 (arrêt Ludovic Bonin)
À 4km du centre-ville de Lyon
À 5km de la gare TER/TGV Lyon Part-Dieu
Écoles, services et commerces accessibles à pied

INFORMATIONS LOI ALUR :

Statut du négociateur : Agent immobilier
Classe énergie et climat : RT 2012
Bien soumis au statut de la copropriété
Les honoraires sont à la charge du vendeur
Les informations sur les risques associés à ce bien sont disponibles sur le site Géorisques : www.georisques.gouv.fr

Saisissez cette occasion exceptionnelle dès maintenant ! Pour de plus amples informations et pour planifier une visite, veuillez contacter Maxime, votre agent immobilier au 06.77.08.69.93.

Résumé

  • Type Appartement
  • Salle d'eau 1
  • Surface 21 m²
  • Prix 173,000€

Localisation

Détails

  • Référence 1810
  • Prix 173 000€
  • Pourcentage honoraires 0.00%

Les plus

  • Terrasse

Diagnostic énergétique du bien

Diagnostic de performance énergétique

DPE non communiqué Consommations non exploitables
* Dont émissions de gaz à effet de serre
GES non communiqué Consommations non exploitables

Géorisques

Les informations sur les risques auxquels ce bien est exposé sont disponibles sur le site Géorisques https://www.georisques.gouv.fr

Isère Finance

379, rue du Bérard
38500 Coublevie

04 76 05 81 35

Nous contacter

* ISERE FINANCE respecte la loi n°78-17 du 6 janvier 1978 (la « loi Informatique et Libertés ») et, à partir du 25 mai 2018, le règlement (UE) 2016/679 du Parlement européen et du Conseil du 27 avril 2016 relatif à la protection des personnes physiques à l'égard du traitement des données à caractère personnel et à la libre circulation de ces données (le « RGPD »). Vous pouvez à tout moment vous opposer à ce que vos données soient utilisées à ces fins en écrivant à dpo@news.iserefinance.fr ou à l'adresse postale suivante : ISERE FINANCE - SERVICE DPO - 379, RUE DU BERARD 38500 COUBLEVIE.